z型斗式提升机厂家
发布时间:2026-03-06 14:05:31作 者:大汉机械来 源:未知
想要获取更多产品信息?立即咨询
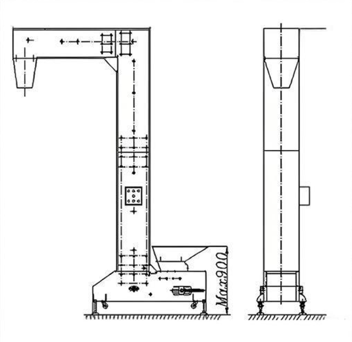
Z型斗式提升机是工业散料输送中的重要设备,这种设备结构紧凑、空间利用率高。广泛应用在粮食、化工、建材等多个行业。

而Z型斗式提升机厂家主要负责提供符合行业需求的设备和定制化解决方案。像我们厂家,我们家具备从研发设计、原料加工到成品检测、售后维护的全链条服务能力。不仅能满足常规输送需求,也能应对复杂工况下的特殊要求。那么怎么选择合适的厂家呢?

厂家的核心实力
Z型斗式提升机厂家的核心实力体现在生产规模和技术水平上。像我们厂家,我们家拥有标准化生产车间,配备数控激光切割机、自动化焊接机器人等高精度加工设备,能实现核心部件的自主生产,避免外购部件带来的质量隐患。同时我们还有组建专业研发团队,投入资金用于技术优化,同时通过严格的质量检测流程,确保每台设备运行稳定。

厂家的产品优势
Z型斗式提升机厂家的产品优势,主要体现在适配性和实用性上。像我们厂家生产生产的Z型斗式提升机,输送量和提升高度可以灵活调整,输送量覆盖5-300m³/h,提升高度最高可达30米,能适配粉状、颗粒状、小块状等多种物料。并且设备采用全封闭结构,可以防止粉尘外溢。同时运行噪音低、能耗小,能降低企业运营成本。

完善的服务保障
完善的服务保障是Z型斗式提升机厂家的重要竞争力。像我们厂家,我们家提供售前、售中、售后全流程服务,售前会安排技术人员对接客户,了解物料特性、输送需求和场地条件,免费出具优化方案,帮助客户选型。售中会提供设备安装指导和操作培训,确保客户工作人员能熟练操作设备。售后会建立全国服务网络,配备专业维修团队,提供24小时响应服务。

(本文由大汉螺旋输送机编辑整理发布,转载请注明出处:www.luoxuanshusong.net)一直被模仿,从未被超越!
- 上一篇:双轴螺旋输送机厂家
- 下一篇:z型斗式提升机和垂直螺旋输送机区别




